Dom na skarpie

Rok
2024
Status
Pozwolenie na budowę
Powierzchnia
248 m²
Zespół
Roderyk Milik
Paweł Lis
Monika Kubacka
Malownicza skarpa. Widok na położoną nieopodal rozległą dolinę. Idylliczny spokój i las będący częścią założenia. Dom wpisany w zastaną topografię terenu z szacunkiem dla natury.


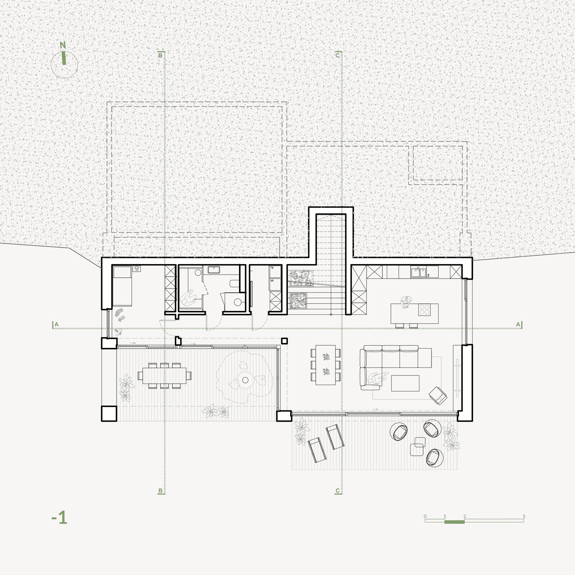
Poziomy domu podążają za opadającym terenem. Warstwice umożliwiły stworzenie dwóch poziomów, z których każdy ma bezpośredni dostęp do otoczenia. Górny poziom to strefa wejściowa, techniczna, gabinetowa oraz główna sypialnia. Gabinety mają własny taras. Trenażer rowerowy ma własny wykusz. Klatka schodowa ma wysokie otwarcie do samego dachu. Dolny poziom to część dzienna i dziecięca. Własne wyjścia na ogród. Stół jadalni to centrum domu. Kuchnia z dużym oknem. Salon w pełni otwarty na otoczenie.









Dom ulokowano w miejscu gdzie znajdował się wykop po niedokończonej budowie poprzedniego właściciela działki. Dzięki temu ograniczono do minimum prace ziemne na trudnym terenie. Na działce rośnie samotna sosna - zostanie razem z domem. Szanujemy to, co zastane. Jesteśmy na wsi z drzewem w nazwie, nieopodal znajdują się domy wykończone materiałem, stąd wybór drewna na elewację i dach był naturalny. Naturalny jak klimat, który dom ma tworzyć z przyrodą dookoła.




